




Vitalhaus Breitbrunn von Regnauer Hausbau
Ab 416.455 €
Bewertungen von Regnauer Hausbau
5,0
(1)
Wohnfläche
236 m²
Zimmer
5
Ausbaustufe
Schlüsselfertig
Bauweise
Fertighaus
Energiestandard
Effizienzhaus 40 Plus
Dachform
Satteldach
Hausart
Doppelhaus
Beschreibung
Den Ruhestand im Herzen Bayerns zu verbringen, mitten in einem Naturpark: Das war der Traum eines Ehepaars aus Hessen. Dort, wo die beiden jahrelang Urlaub gemacht hatten, wollten sie irgendwann auch leben. Natürlich im Grünen und idealerweise in einem nachhaltigen Gebäude mit großzügigem Grundriss, breiten Glasfronten und einer Veranda, die zum abendlichen Plausch einlädt.
Den passenden Grund für diesen Traum fand das Ehepaar schnell. Und weil dieser für ein Einfamilienhaus zu weitläufig war, lieferte Wunschhersteller Regnauer Hausbau nicht nur ein Vitalhaus. Darüber hinaus organisierte er auch einen Baupartner, sodass statt eines Einfamilienhauses ein Doppelhaus mit flankierendem Carport realisiert werden konnte.
Von außen wirkt das in weißem Holz verschalte Anwesen mit dem 18 Grad geneigten Satteldach, den zum Teil bodentiefen Fenstern und den hellblauen Fensterläden wie ein Ferientraum aus der Südsee. Während sich die Richtung Norden orientierte Eingangsfront eher geschlossen zeigt, laden die zum Garten hin ausgerichteten Süd- und Westseiten mit einer Terrasse und einer umlaufenden Veranda zu gemütlichen Familientreffen und stillen Lesestunden ein.
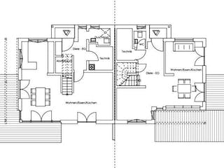
Der größte Teil der Erdgeschossfläche ist dem einladenden Wohnraum mit dem darin integrierten großzügigem Essbereich sowie der offenen Kochzone vorbehalten. Auf dem restlichen Viertel finden der großzügige Eingangsbereich, die Garderobe, ein Gäste-WC und ein Technikraum Platz. Im Zentrum des Wohnraums führt eine einläufige Holztreppe ins Obergeschoss zu den dort angeordneten beiden Schlafzimmern, einem zusätzlichen Aufenthaltsbereich und einem großzügigen Badezimmer.
Dank der energetisch hochwertigen Bauweise kommt das 117 Quadratmeter Wohnfläche große Gebäude auf einen Jahres-Primärenergiebedarf Q“P von lediglich 35,4 kWh/m²a. Die benötigte Restwärme in der kalten Jahreszeit liefert ein Gasbrennwertgerät. Eine 4,1 m2 Fläche einnehmende Solaranlage mit einem 300 l Solarboiler deckt den Bedarf an Warmwasser ab. Eine zentrale Lüftungsanlage sorgt zu jeder Jahreszeit für optimales Raumklima. Und der natürliche Baustoff Holz sowie die großzügige lichtdurchflutete Bauweise stellen sicher, dass die Atmosphäre des Gebäudes auch an trüben Tagen einen Hauch von Südsee versprüht.
Ausführung gemäß aktueller Regnauer Bauleistungs- und Ausstattungsbeschreibung. Weitere Informationen auf www.regnauer.de. Abbildungen können Sonderausstattung zeigen. Wir legen großen Wert darauf, Ihr Vitalhaus ganz nach Ihren persönlichen Wünschen zu gestalten. Gemäß Ihren Wünschen und Ihrer Grundstückssituation ergibt sich dann ein exakter Festpreis für Ihr Traumhaus. Daher beziehen sich die Preise auf eine Vitalausstattung ohne spezifische Sonderausstattung.
Voraussetzung zur Erlangung der Bundesförderung für Effiziente Gebäude ist die Einhaltung der diesbezüglichen Förderrichtlinien. So wird hierfür unter anderem die Ausführung einer förderfähigen Haustechnik sowie die entsprechende Ausführung der bauherrenseitigen Leistungen (z.B. Keller und -ausbau) vorausgesetzt. Die Förderrichtlinien sind auch Änderungen unterworfen, sodass die Förderfähigkeit jeweils im Einzelfall geprüft und objektspezifisch durch das Förderinstitut bestätigt werden muss. Auch können einzelne Programme ausgesetzt oder verändert werden. Die Regnauer Hausbau GmbH & Co KG kann keine Finanzierungs- oder Förderberatung durchführen.
Merkmale
- Einliegerwohnung
Sie haben Interesse?
Laden Sie sich jetzt Ihr kostenloses Exposé zu diesem Haus herunter:
Grundrissfür Vitalhaus Breitbrunn
Grundrisse
Der Grundriss entspricht nicht Ihren Vorstellungen?
Passen Sie den Grundriss an Ihre persönlichen Bedürfnisse an und besprechen Sie Ihren individuellen Plan mit einem Bauberater des Anbieters.
Merkmale
Energiestandard und Förderung
Energiestandard
Effizienzhaus 40
Effizienzhaus 40 Plus
Dach
Dachform
Satteldach
Preisdetails für Vitalhaus Breitbrunn
Schlüsselfertig ab
416.455 €
ab 1.253,70 €
Dieser Preis ist ein Beispiel für den Anfang, ein Berater kann Ihnen ein detailliertes Angebot erstellen, das Ihren Bedürfnissen entspricht.
Möchten Sie bei Ihrem Projekt Geld sparen?
Durch einen Angebotsvergleich mit Bungalow.de können Sie bis zu 20 % Ihrer Baukosten sparen.
Über den Anbieter Regnauer Hausbau
Zum Anbieterprofil
Bewertungen
5,0
(1)

Bewertungen
5,0
1 BewertungHervorragend
Regnauer Hausbau in Zahlen
Gründungsjahr
1929
Häuser im Angebot
26
Häuser pro Jahr
ca. 100
Häuser gesamt
über 3.000
Mitarbeiter
250
Bewertungen von Regnauer Hausbau
Wir waren den Sommer über im Allgäu und haben...
Wir waren den Sommer über im Allgäu und haben dort diese wunderschönen Häuser bestaunen können! In unserer Phantasie wünschen wir uns auch schon länger solch ein tolles Haus.
07 Dez. 2025Elphi W.
Leistungsspektrum
Finanzierungsberatung
Preisgarantie
Bauzeit Garantie
Individuelle Planung
Blower Door Test
Persönliche Beratung für Ihre individuellen Wünsche
Finden Sie jetzt Ihren Ansprechpartner
Regnauer Hausbau
Auszeichnungen, Zertifikate & Mitgliedschaften






Ähnliche Häuser Für Vitalhaus Breitbrunn