






Vitalhaus Klosterberg von Regnauer Hausbau
Preis auf Anfrage
Bewertungen von Regnauer Hausbau
5,0
(1)
Wohnfläche
145 m²
Zimmer
6
Ausbaustufe
Schlüsselfertig
Bauweise
Fertighaus
Energiestandard
Effizienzhaus 40 Plus
Dachform
Satteldach
Hausart
Einfamilienhaus
Beschreibung
Wohnen im smarten BauhausdesignWie sieht das perfekte Zuhause für Zwei aus? Die richtige Antwort darauf ist der barrierefreie Bungalow eines Ehepaars in Süddeutschland. Regnauer Hausbau realisierte ihn aus Holz, mit Smart Home Technik und konsequent modern.
Wie wollen wir wohnen? Heute, übermorgen und im Alter? Mit ihrem Regnauer Bungalow hat ein Ehepaar in Süddeutschlanddiese Frage in eine ganz persönliche und dabei wegweisende Realität umgesetzt. Die Ärztin und der Unternehmer wählten gezielteine wohngesunde Holzfertigbauweise im Bauhausstil, effiziente und dabei großzügige Grundrissgestaltung und nicht zuletztdie barrierefreie Umsetzung aller Räumlichkeiten im Haus.
Perfektion als MaßstabSchon das auf einer kleinen Anhöhe mit Blick über Felder und den Wald gelegene Grundstück, auf dem der Neubau steht,wirkt perfekt: Ländliche Idylle ringsherum, ein beschauliches Dorf mit barocker Klosteranlage in Gehweite, und die Großstadt nur 20 Autominuten entfernt. So ist es kein Wunder, dass die Bewohner auch beim eigentlichen Wohngebäude keine Kompromisseeingehen wollten.
Um ihr Zuhause optimal zu gestalten, überließ die Bauherrin bei der Planung nichts dem Zufall. Das Ergebnis ist ein ruhiger, gradliniger Baukörper mit klassisch-modernem, vom Bauhaus inspirierten Design, der dank schwellenloser Ausführung sowie 1 m breiter und 2,10 m hoher Türen Eleganz und Barrierefreiheit perfekt vereint.
Optimaler Kompromiss: Bungalow mit SatteldachDa der Bebauungsplan das ursprünglich favorisierte Flachdach nicht erlaubte, erhielt das weiß verputzte Einfamilienhaus einlediglich 17 Grad geneigtes Satteldach. Zugunsten der kubischen Anmutung des Gebäudes verzichtet es zudem auf einen Dachüberstand und nutzt die erlaubte Traufhöhe von 3,20 m maximal aus.
Die langgestreckte Optik des Bungalows wird durch schlanke anthrazitfarbene Fenster und Fenstertüren noch betont. Die Südseite prägen bodentiefe Glasflächen. Auf der dem Hang zugewandten und von diesem durch einen „Burggraben“ getrenntenNordfassade erhielten die Fenster eine ungewöhnliche Brüstungshöhe von 40 cm, sodass sich die Gestaltungsidee auch hierkonsequent fortsetzt.
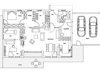
Drinnen, immer mit Blick nach draußenDie großzügige Diele ist vollständig verglast. Wer das Haus betritt, kann von hier aus durch eine Glaspendeltüre direkt in denvier Meter hohen, zentralen Wohnbereich blicken. Und weiter noch – wie fast von jedem Standpunkt im Haus – auf die Naturringsherum.
Das nach Süden ausgerichtete, mit einem Kaminofen gemütlich ausgestattete Wohn-Esszimmer lädt in jeder Jahreszeit zum Beisammensein ein. Und wenn es im Sommer draußen zu schön für Stubenhocker ist, öffnen die Bewohner einfach die Schiebetür zur Terrasse mit der integrierten – und damit schützenden – Loggia davor.
Vom Wohnraum aus erschließen sich auch alle restlichen Bereiche des Hauses – bei völligem Verzicht auf Verkehrsflächen.Schiebetüren eröffnen den Zugang zur Küche, die mit Eckfenstern Ausblicke nach Süden und Osten erlaubt. Sie führen in denSchlaftrakt mit Bad und Ankleide, der mit seinen etwas reduzierten Fensterflächen fast wie ein separater Flügel des Hauses wirkt. Und sie bilden den Zugang in das ebenfalls nach Süden ausgerichtete Arbeitszimmer sowie den daran angrenzenden Sportraum.
Gelebte Funktion
Der von der Diele erreichbare Technikraum wiederum dient auch als Durchgang zur Garage und als kleiner Kellerersatz. Denn den gibt es ebenso wenig wie sonstige Abstellräume. Platz für die vielen Dinge des Alltags bieten stattdessen Einbauschränke – im Sportzimmer, im Arbeitszimmer, im Schlafzimmer, in der Ankleide, im Technikraum und der Diele – sodass auf Räume ohne Aufenthaltsfunktion verzichtet werden konnte.
Alle Räume sind bis zum Dach hin offen. Lediglich die Funktionsräume – Diele, Bäder, Küche und Technikraum – erhielten eineabgehängte Decke. Der Übertritt von diesen in die zentralen Aufenthaltsräume ist somit jeweils mit dem „Erlebnis“ der Öffnungverbunden. Zudem wurden Böden der Funktionsräume einheitlich mit quadratischen, leicht zu reinigenden Steingutfliesenausgelegt, während alle anderen Räume mit strukturiertem naturgeölten Eiche-Dielen-Parkett ausgestattet sind.
Konstruktion, Technik, Smart HomeHinter diesem Innenausbau verbirgt sich die wohngesunde Holzfertigbauweise des Chiemgauer Familienbetriebs Regnauer: eineVitalwand mit Holzfaserdämmung und dreifach verglasten Holz-Alu-Fenstern sowie ein Thermo-Vitaldach, das eingedeckt mit reflektierenden Glattziegeln gleichzeitig vor winterlicher Kälte und sommerlicher Hitze schützt.
Im Westen verfügt der Neubau über elektrisch betätigte Rollläden, ansonsten über elektrisch betätigte Raffstores. Eine Luft-Wasser-Wärmepumpe in Kombination mit Fußbodenheizung und Kühlfunktion sowie eine kontrollierte Be- und Entlüftungsanlagesorgt stets für ein angenehmes Klima. Zudem leisteten sich die Bauherren eine physikalische Wasseraufbereitung zur Entkalkung des Wassers.
Auch das Thema Smart Home hat das Ehepaar in seinem Zuhause optimal umgesetzt: Eine Somfy Smart Home-Steuerung regelt die sensorgesteuerte Beschattung und die Alarmfunktion sowie nicht zuletzt die Lichtsteuerung des Gebäudes. Dieses ist vorwiegend mit integrierten LED-Decken-Einbauleuchten ausgestattet und in Helligkeit und Lichtfarbe auf die Raumfunktionen abgestimmt – so dass die kleine Familie an jedem Tag und jedem Ort in ihrem Traumhaus genauso wohnt, wie sie es will.
Ausführung gemäß aktueller Regnauer Bauleistungs- und Ausstattungsbeschreibung. Weitere Informationen auf www.regnauer.de. Abbildungen können Sonderausstattung zeigen. Wir legen großen Wert darauf, Ihr Vitalhaus ganz nach Ihren persönlichen Wünschen zu gestalten. Gemäß Ihren Wünschen und Ihrer Grundstückssituation ergibt sich dann ein exakter Festpreis für Ihr Traumhaus. Daher beziehen sich die Preise auf eine Vitalausstattung ohne spezifische Sonderausstattung.
Voraussetzung zur Erlangung der Bundesförderung für Effiziente Gebäude ist die Einhaltung der diesbezüglichen Förderrichtlinien. So wird hierfür unter anderem die Ausführung einer förderfähigen Haustechnik sowie die entsprechende Ausführung der bauherrenseitigen Leistungen (z.B. Keller und -ausbau) vorausgesetzt. Die Förderrichtlinien sind auch Änderungen unterworfen, sodass die Förderfähigkeit jeweils im Einzelfall geprüft und objektspezifisch durch das Förderinstitut bestätigt werden muss. Auch können einzelne Programme ausgesetzt oder verändert werden. Die Regnauer Hausbau GmbH & Co KG kann keine Finanzierungs- oder Förderberatung durchführen.
Sie haben Interesse?
Laden Sie sich jetzt Ihr kostenloses Exposé zu diesem Haus herunter:
Grundrissfür Vitalhaus Klosterberg
Grundrisse
Der Grundriss entspricht nicht Ihren Vorstellungen?
Passen Sie den Grundriss an Ihre persönlichen Bedürfnisse an und besprechen Sie Ihren individuellen Plan mit einem Bauberater des Anbieters.
Merkmale
Energiestandard und Förderung
Energiestandard
Effizienzhaus 40
Effizienzhaus 40 Plus
Dach
Dachform
Satteldach
Preisdetails für Vitalhaus Klosterberg
Schlüsselfertig ab
Preis auf Anfrage
Dieser Preis ist ein Beispiel für den Anfang, ein Berater kann Ihnen ein detailliertes Angebot erstellen, das Ihren Bedürfnissen entspricht.
Möchten Sie bei Ihrem Projekt Geld sparen?
Durch einen Angebotsvergleich mit Bungalow.de können Sie bis zu 20 % Ihrer Baukosten sparen.
Über den Anbieter Regnauer Hausbau
Zum Anbieterprofil
Bewertungen
5,0
(1)

Bewertungen
5,0
1 BewertungHervorragend
Regnauer Hausbau in Zahlen
Gründungsjahr
1929
Häuser im Angebot
26
Häuser pro Jahr
ca. 100
Häuser gesamt
über 3.000
Mitarbeiter
250
Bewertungen von Regnauer Hausbau
Wir waren den Sommer über im Allgäu und haben...
Wir waren den Sommer über im Allgäu und haben dort diese wunderschönen Häuser bestaunen können! In unserer Phantasie wünschen wir uns auch schon länger solch ein tolles Haus.
07 Dez. 2025Elphi W.
Leistungsspektrum
Finanzierungsberatung
Preisgarantie
Bauzeit Garantie
Individuelle Planung
Blower Door Test
Persönliche Beratung für Ihre individuellen Wünsche
Finden Sie jetzt Ihren Ansprechpartner
Regnauer Hausbau
Auszeichnungen, Zertifikate & Mitgliedschaften






Ähnliche Häuser Für Vitalhaus Klosterberg