




Vitalhaus Seehausen von Regnauer Hausbau
Ab 568.485 €
Bewertungen von Regnauer Hausbau
5,0
(1)
Wohnfläche
150 m²
Zimmer
4
Ausbaustufe
Schlüsselfertig
Bauweise
Fertighaus
Energiestandard
Effizienzhaus 40 Plus
Dachform
Satteldach
Hausart
Einfamilienhaus
Beschreibung
Ein Vitalhaus durch und durch - Die Inspiration für den gebauten Traum im Grünen lieferte kurioser Weise nicht der Hausbau, son-dern der Objektbereich des Holzhausherstellers Regnauer aus Oberbayern. Als der Steuerberater die Regnauer-Ideen für Gewer-beimmobilien kennenlernte, sprang der Funke über. Gemeinsam mit seiner Lebensgefährtin entschied er sich, auch privat ein Haus von Regnauer zu realisieren. Dessen Vitalhauskonzept sprach die beruflich stark beanspruchte Bauherrenfamilie an. Sie wünschte sich einen wohltuenden Rückzugsort aus dem stressigen Alltag eines Selbständigen, einen Platz zum Durchatmen und Entspannen.
Raum für die Natur - Regnauer setzte dieses Ziel in einem indivi-duell geplanten Architektenhaus mit einer elegant-schlichten Ge-staltung zur Straße und einer dominanten Glasfassade zum Gar-tengrundstück mit anschließender Wiese um. Wohltuend: die offe-nen, großzügigen Wohnräume, die bei der Bauherrenfamilie durch die großen Glasflächen von besonders viel Licht durchflutet wer-den und das Haus in die Landschaft des Voralpenlandes hinaus zu verlängern scheinen. Aus der Natur stammt auch der Baustoff Holz, den die Fassade im Obergeschoss mit einer waagerechten Scha-lung aufnimmt. Im Innern schaffen Holzböden den Bogen zum Baustoff. Den Ton gibt die Farbe Weiß an – außen durch Struktur-putz an der Erdgeschossfassade und durch weiß gestrichene Sicht-balken, innen durch weiße Wände, Decken und Einbauschränke. Details wie eine geschwungene Wendeltreppe in Anthrazit und Edelstahlelemente ziehen die Blicke auf sich.
Holz: spürbar gut – Unsichtbar und sehr effizient: die Holzfa-serdämmung der Regnauer-Vitalwände. Spürbar: die gesunde Raumluft, die der Baustoff Holz garantiert. Im Sommer ist es ange-nehm kühl, im Winter kuschelig warm.
Ausführung gemäß aktueller Regnauer Bauleistungs- und Ausstattungsbeschreibung. Weitere Informationen auf www.regnauer.de. Abbildungen können Sonderausstattung zeigen. Wir legen großen Wert darauf, Ihr Vitalhaus ganz nach Ihren persönlichen Wünschen zu gestalten. Gemäß Ihren Wünschen und Ihrer Grundstückssituation ergibt sich dann ein exakter Festpreis für Ihr Traumhaus. Daher beziehen sich die Preise auf eine Vitalausstattung ohne spezifische Sonderausstattung.
Voraussetzung zur Erlangung der Bundesförderung für Effiziente Gebäude ist die Einhaltung der diesbezüglichen Förderrichtlinien. So wird hierfür unter anderem die Ausführung einer förderfähigen Haustechnik sowie die entsprechende Ausführung der bauherrenseitigen Leistungen (z.B. Keller und -ausbau) vorausgesetzt. Die Förderrichtlinien sind auch Änderungen unterworfen, sodass die Förderfähigkeit jeweils im Einzelfall geprüft und objektspezifisch durch das Förderinstitut bestätigt werden muss. Auch können einzelne Programme ausgesetzt oder verändert werden. Die Regnauer Hausbau GmbH & Co KG kann keine Finanzierungs- oder Förderberatung durchführen.
Sie haben Interesse?
Laden Sie sich jetzt Ihr kostenloses Exposé zu diesem Haus herunter:
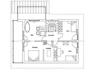
Grundrissfür Vitalhaus Seehausen
Grundrisse
Der Grundriss entspricht nicht Ihren Vorstellungen?
Passen Sie den Grundriss an Ihre persönlichen Bedürfnisse an und besprechen Sie Ihren individuellen Plan mit einem Bauberater des Anbieters.
Merkmale
Energiestandard und Förderung
Energiestandard
Effizienzhaus 40
Effizienzhaus 40 Plus
Dach
Dachform
Satteldach
Preisdetails für Vitalhaus Seehausen
Schlüsselfertig ab
568.485 €
ab 1.711,38 €
Dieser Preis ist ein Beispiel für den Anfang, ein Berater kann Ihnen ein detailliertes Angebot erstellen, das Ihren Bedürfnissen entspricht.
Möchten Sie bei Ihrem Projekt Geld sparen?
Durch einen Angebotsvergleich mit Bungalow.de können Sie bis zu 20 % Ihrer Baukosten sparen.
Über den Anbieter Regnauer Hausbau
Zum Anbieterprofil
Bewertungen
5,0
(1)

Bewertungen
5,0
1 BewertungHervorragend
Regnauer Hausbau in Zahlen
Gründungsjahr
1929
Häuser im Angebot
26
Häuser pro Jahr
ca. 100
Häuser gesamt
über 3.000
Mitarbeiter
250
Bewertungen von Regnauer Hausbau
Wir waren den Sommer über im Allgäu und haben...
Wir waren den Sommer über im Allgäu und haben dort diese wunderschönen Häuser bestaunen können! In unserer Phantasie wünschen wir uns auch schon länger solch ein tolles Haus.
07 Dez. 2025Elphi W.
Leistungsspektrum
Finanzierungsberatung
Preisgarantie
Bauzeit Garantie
Individuelle Planung
Blower Door Test
Persönliche Beratung für Ihre individuellen Wünsche
Finden Sie jetzt Ihren Ansprechpartner
Regnauer Hausbau
Auszeichnungen, Zertifikate & Mitgliedschaften






Ähnliche Häuser Für Vitalhaus Seehausen