






Siglingen von Rems-Murr-Holzhaus
Ab 274.728 €
Bewertungen von Rems-Murr-Holzhaus
3,8
(37)
Wohnfläche
115 m²
Zimmer
5
Ausbaustufe
Ausbauhaus
Bauweise
Blockhaus
Etagen
1,5
Energiestandard
Effizienzhaus 55
Dachform
Satteldach
Hausart
Einfamilienhaus
Beschreibung
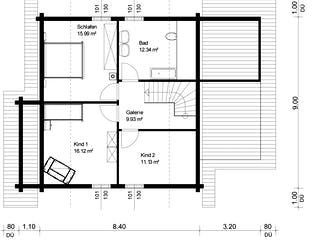
Haustyp Siglingen verfügt auf einer Grundfläche von gerade einmal 9,5 x 10,3 m über eine Gesamtwohnfläche von 115,33 qm. Mittelpunkt im Erdgeschoss ist der komplett offene Wohn-Ess-Kochbereich, der an Geräumigkeit nichts zu wünschen übrig lässt. Das Obergeschoss erschließt sich über eine lichte, breite Treppe und wartet neben drei geräumigen Zimmern mit einem hellen, modernen Bad auf. Der sichtbare Dachstuhl gibt den Räumen seinen unwiderstehlichen Charme.
Typ Siglingen ist - wie hier gezeigt - in massiver Blockbauweise erhältlich, ebenso in kombinierter Block-Ständer- oder reiner Holzmauerbauweise (natürlich auch verputzt), schlüsselfertig, als Ausbauhaus oder Bau-Mit-Haus.
Übrigens werden alle verwendeten Baustoffe auf ihre Umwelt- und Menschenverträglichkeit geprüft bevor sie ihren Weg in ein Rems-Murr-Holzhaus finden. Alle RMH-Häuser sind daher bedenkenlos für Allergiker geeignet.
Angaben zum Preis: ab OK Kellerdecke; in der Grundversion laut Leistungsumfang Katalog und incl. 19% MwSt.
Sie haben Interesse?
Laden Sie sich jetzt Ihr kostenloses Exposé zu diesem Haus herunter:
Grundrissfür Siglingen
Grundrisse
Der Grundriss entspricht nicht Ihren Vorstellungen?
Passen Sie den Grundriss an Ihre persönlichen Bedürfnisse an und besprechen Sie Ihren individuellen Plan mit einem Bauberater des Anbieters.
Merkmale
Energiestandard und Förderung
Energiestandard
Effizienzhaus 55
U-Wert
0,17
Dach
Dachform
Satteldach
Dachneigung
30°
Kniestockhöhe
100 cm
Preisdetails für Siglingen
Ausbauhaus ab
274.728 €
ab 827,05 €
Dieser Preis ist ein Beispiel für den Anfang, ein Berater kann Ihnen ein detailliertes Angebot erstellen, das Ihren Bedürfnissen entspricht.
Möchten Sie bei Ihrem Projekt Geld sparen?
Durch einen Angebotsvergleich mit Bungalow.de können Sie bis zu 20 % Ihrer Baukosten sparen.
Über den Anbieter Rems-Murr-Holzhaus
Zum Anbieterprofil
Bewertungen
3,8
(37)

Bewertungen
3,8
37 BewertungenGut
Rems-Murr-Holzhaus in Zahlen
Gründungsjahr
1986
Häuser im Angebot
18
Häuser pro Jahr
20
Mitarbeiter
16
Bewertungen von Rems-Murr-Holzhaus
Hat sich bislang nicht gemeldet und auch kein...
Hat sich bislang nicht gemeldet und auch keine Unterlagen geschickt. Der Baustil passt nicht in die umliegenden Häuser. Wir möchten hier keine weiteren Kontaktaufnahmen.
15 Jan. 2026Yvonne G.
Keine passenden möglichen Lösungen
Keine passenden möglichen Lösungen
25 Sep. 2025Wilfried Z.
Danke für die Informationen
Danke für die Informationen
07 Juni 2025Claudia F.
Leistungsspektrum
Preisgarantie
Bauzeit Garantie
Individuelle Planung
Blower Door Test
Persönliche Beratung für Ihre individuellen Wünsche
Finden Sie jetzt Ihren Ansprechpartner
Rems-Murr-Holzhaus
Ähnliche Häuser Für Siglingen