







E 15-150.2 - Schmales Hauskonzept von SchwörerHaus
Ab 398.827 €
Bewertungen von SchwörerHaus
4,0
(95)
Wohnfläche
102 m²
Zimmer
8
Ausbaustufe
Schlüsselfertig
Bauweise
Fertighaus
Etagen
1,5
Energiestandard
Effizienzhaus 55
Dachform
Satteldach
Hausart
Einfamilienhaus
Beschreibung
Lösung auch für schwierige Grundstückssituationen: Die vierköpfige Familie Garatwa-Weimer verwirklichte ihr Traumhaus auf drei Ebenen: die jugendlichen Kinder mit eigenem Bad im Dachgeschoss, der Familientreffpunkt im Erdgeschoss und der Rückzugsbereich für die Erwachsenen im Untergeschoss. “Unser Haus bietet genauso viel wie ein großes, auch Familienfeste mit vielen Gästen funktionieren problemlos.“ Egal, ob ungünstiger Zuschnitt, Hanglage oder Straßennähe: auch problematische Grundstücke sind bebaubar. Wie im Falle dieses Restgrundstückes, für das ein schmales Hauskonzept entwickelt wurde. Weißer Putz und schiefergraue Fensterrahmen in Kombination mit einer Holzfassade im Holzton Opak verleihen ihm eine moderne Anmutung.
Angaben zum Preis: inkl. 19% MwSt., ab OK Bodenplatte/Kellerdecke, Effizienzhaus 55 EE, Erdgeschoss und Dachgeschoss fast fertig ausgestattet, gültig bis 31.07.2026 für Deutschland außer Inseln.
Merkmale
- Gästezimmer
- Balkon
Sie haben Interesse?
Laden Sie sich jetzt Ihr kostenloses Exposé zu diesem Haus herunter:
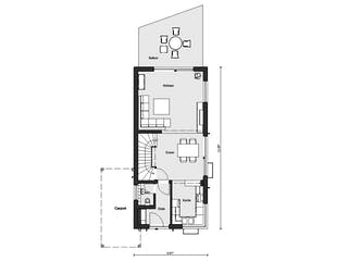
Grundrissfür E 15-150.2 - Schmales Hauskonzept
Außenmaße
Länge: 5,61 m
Breite: 12,35 m
Grundrisse
Der Grundriss entspricht nicht Ihren Vorstellungen?
Passen Sie den Grundriss an Ihre persönlichen Bedürfnisse an und besprechen Sie Ihren individuellen Plan mit einem Bauberater des Anbieters.
Merkmale
Energiestandard und Förderung
Energiestandard
Effizienzhaus 40
Effizienzhaus 40 Plus
Effizienzhaus 55
Plusenergiehaus
U-Wert
0,16
Dach
Dachform
Satteldach
Dachneigung
40°
Kniestockhöhe
175 cm
Preisdetails für E 15-150.2 - Schmales Hauskonzept
Schlüsselfertig ab
398.827 €
ab 1.200,64 €
Dieser Preis ist ein Beispiel für den Anfang, ein Berater kann Ihnen ein detailliertes Angebot erstellen, das Ihren Bedürfnissen entspricht.
Möchten Sie bei Ihrem Projekt Geld sparen?
Durch einen Angebotsvergleich mit Bungalow.de können Sie bis zu 20 % Ihrer Baukosten sparen.
Über den Anbieter SchwörerHaus
Zum Anbieterprofil
Bewertungen
4,0
(95)

Bewertungen
4,0
95 BewertungenGut
SchwörerHaus in Zahlen
Gründungsjahr
1950
Häuser im Angebot
68
Häuser pro Jahr
800 - 1.000
Häuser gesamt
47.000
Mitarbeiter
1450
Bewertungen von SchwörerHaus
Mit Bauaufträgen voll. Bauzeit zu lange, nich...
Mit Bauaufträgen voll. Bauzeit zu lange, nicht flexibel, hält starr an ihrem Konzept fest.
30 Aug. 2025Lothar K.
Sehr schnell!
Sehr schnell!
12 Juli 2025Kirsten K.
Ok, sehr zufrieden
Ok, sehr zufrieden
30 Dez. 2023Stephan O.
Leistungsspektrum
Finanzierungsberatung
Preisgarantie
Bauzeit Garantie
Individuelle Planung
Blower Door Test
Persönliche Beratung für Ihre individuellen Wünsche
Finden Sie jetzt Ihren Ansprechpartner
SchwörerHaus
Auszeichnungen, Zertifikate & Mitgliedschaften


Ähnliche Häuser Für E 15-150.2 - Schmales Hauskonzept