
Ambiente 150 von Suckfüll Energiesparhaus
Ab 412.763 €
Bewertungen von Suckfüll Energiesparhaus
3,5
(57)
Wohnfläche
141 m²
Zimmer
8,5
Ausbaustufe
Schlüsselfertig
Bauweise
Fertighaus
Etagen
1,5
Energiestandard
Effizienzhaus 40
Dachform
Satteldach
Hausart
Einfamilienhaus
Beschreibung
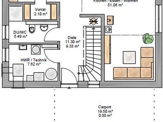
Den Quergiebel hervorgezogen und im Erdgeschoss als Erker ausgebildet, das erzeugt das schicke Ambiente dieser Idee. Der offene Durchgang des Koch- und Wohnbereichs zur Diele macht das Besondere des Erdgeschoss-Grundrisses aus. Ein Kaminofen sorgt für wohlige Wärme. Alle Räume im Dachgeschoss sind in ihrer Größe sehr ansprechend und werden den Wünschen einer Familie mehr als gerecht.
Preise verstehen sich inkl. Bodenplatte und inkl. MwSt. - Mehrpreis für dargestellte Garage mit Bodenplatte und Carport = 52.209 €
Merkmale
- Erker
Sie haben Interesse?
Laden Sie sich jetzt Ihr kostenloses Exposé zu diesem Haus herunter:
Grundrissfür Ambiente 150
Außenmaße
Länge: 9 m
Breite: 10,4 m
Grundrisse
Der Grundriss entspricht nicht Ihren Vorstellungen?
Passen Sie den Grundriss an Ihre persönlichen Bedürfnisse an und besprechen Sie Ihren individuellen Plan mit einem Bauberater des Anbieters.
Merkmale
Energiestandard und Förderung
Energiestandard
Effizienzhaus 40
Effizienzhaus 40 Plus
Effizienzhaus 55
Dach
Dachform
Satteldach
Dachneigung
35°
Preisdetails für Ambiente 150
Schlüsselfertig ab
412.763 €
Ausbauhaus ab320.513 €
ab 1.242,59 €
Dieser Preis ist ein Beispiel für den Anfang, ein Berater kann Ihnen ein detailliertes Angebot erstellen, das Ihren Bedürfnissen entspricht.
Möchten Sie bei Ihrem Projekt Geld sparen?
Durch einen Angebotsvergleich mit Bungalow.de können Sie bis zu 20 % Ihrer Baukosten sparen.
Über den Anbieter Suckfüll Energiesparhaus
Zum Anbieterprofil
Bewertungen
3,5
(57)

Bewertungen
3,5
57 BewertungenAkzeptabel
Suckfüll Energiesparhaus in Zahlen
Gründungsjahr
1958
Häuser im Angebot
47
Bewertungen von Suckfüll Energiesparhaus
Herr Krämer hat einen kompetenten Eindruck ge...
Herr Krämer hat einen kompetenten Eindruck gemacht. Das Gespräch war vertrauensvoll und konstruktiv. Das Angebot ist absolut interessant. Suckfüll ist trotz kleinerer Firma eine Bereicherung.
15 Juni 2025Ulrike O.
Suckfull hat ein Online -Video gesendet und a...
Suckfull hat ein Online -Video gesendet und auch Schwabenhaus.
20 Jan. 2024Heike W.
nichts bestimmtes
nichts bestimmtes
02 Aug. 2023Paul B.
Leistungsspektrum
Preisgarantie
Bauzeit Garantie
Individuelle Planung
Blower Door Test
Persönliche Beratung für Ihre individuellen Wünsche
Finden Sie jetzt Ihren Ansprechpartner
Suckfüll Energiesparhaus
Weitere Häuser
Ähnliche Häuser Für Ambiente 150