
Junge Familie 149 von Suckfüll Energiesparhaus
Ab 394.819 €
Bewertungen von Suckfüll Energiesparhaus
3,5
(57)
Wohnfläche
134 m²
Zimmer
7
Ausbaustufe
Schlüsselfertig
Bauweise
Fertighaus
Etagen
1,5
Energiestandard
Effizienzhaus 40
Dachform
Satteldach
Hausart
Einfamilienhaus
Beschreibung
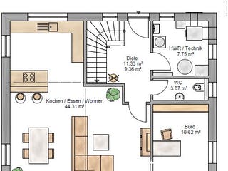
In diesem Entwurf zeichnet sich das Erdgeschoss durch die offene Raumgestaltung mit vielen bodentiefen Fenstern aus.
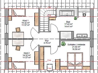
Im Dachgeschoss sind der Eltern- und Badbereich besonders großzügig gestaltet. Das geradlinige Satteldach ist bei optimaler Südausrichtung für eine Solar- oder Photovoltaikanlage bestens geeignet.
Preise verstehen sich inkl. Bodenplatte und inkl. MwSt.
Merkmale
- Gästezimmer
Sie haben Interesse?
Laden Sie sich jetzt Ihr kostenloses Exposé zu diesem Haus herunter:
Grundrissfür Junge Familie 149
Außenmaße
Länge: 8,85 m
Breite: 10,85 m
Grundrisse
Der Grundriss entspricht nicht Ihren Vorstellungen?
Passen Sie den Grundriss an Ihre persönlichen Bedürfnisse an und besprechen Sie Ihren individuellen Plan mit einem Bauberater des Anbieters.
Merkmale
Energiestandard und Förderung
Energiestandard
Effizienzhaus 40
Effizienzhaus 40 Plus
Effizienzhaus 55
Dach
Dachform
Satteldach
Dachneigung
45°
Preisdetails für Junge Familie 149
Schlüsselfertig ab
394.819 €
Ausbauhaus ab278.325 €
ab 1.188,57 €
Dieser Preis ist ein Beispiel für den Anfang, ein Berater kann Ihnen ein detailliertes Angebot erstellen, das Ihren Bedürfnissen entspricht.
Möchten Sie bei Ihrem Projekt Geld sparen?
Durch einen Angebotsvergleich mit Bungalow.de können Sie bis zu 20 % Ihrer Baukosten sparen.
Über den Anbieter Suckfüll Energiesparhaus
Zum Anbieterprofil
Bewertungen
3,5
(57)

Bewertungen
3,5
57 BewertungenAkzeptabel
Suckfüll Energiesparhaus in Zahlen
Gründungsjahr
1958
Häuser im Angebot
47
Bewertungen von Suckfüll Energiesparhaus
Herr Krämer hat einen kompetenten Eindruck ge...
Herr Krämer hat einen kompetenten Eindruck gemacht. Das Gespräch war vertrauensvoll und konstruktiv. Das Angebot ist absolut interessant. Suckfüll ist trotz kleinerer Firma eine Bereicherung.
15 Juni 2025Ulrike O.
Suckfull hat ein Online -Video gesendet und a...
Suckfull hat ein Online -Video gesendet und auch Schwabenhaus.
20 Jan. 2024Heike W.
nichts bestimmtes
nichts bestimmtes
02 Aug. 2023Paul B.
Leistungsspektrum
Preisgarantie
Bauzeit Garantie
Individuelle Planung
Blower Door Test
Persönliche Beratung für Ihre individuellen Wünsche
Finden Sie jetzt Ihren Ansprechpartner
Suckfüll Energiesparhaus
Weitere Häuser
Ähnliche Häuser Für Junge Familie 149