
Lifestyle 219 - inkl. überbauter Garage von Suckfüll Energiesparhaus
Ab 534.094 €
Bewertungen von Suckfüll Energiesparhaus
3,5
(57)
Wohnfläche
188 m²
Zimmer
11
Ausbaustufe
Schlüsselfertig
Bauweise
Fertighaus
Etagen
1,5
Energiestandard
Effizienzhaus 40
Dachform
Satteldach
Hausart
Einfamilienhaus
Beschreibung
Dieser individuelle Lifestyle-Entwurf ist maßgeschneidert für eine große Familie, in welcher jeder seine Rückzugsmöglichkeit findet. Der große Familientisch hat seinen Platz im separaten Esszimmer, welches optional durch Öffnen einer großen Schiebetür mit dem Wohnbereich verbunden werden kann. Die integrierte Garage bildet auf der Gartenseite
einen geschützten Terrassenbereich, welcher zum Verweilen einlädt.
Preise verstehen sich inkl. Bodenplatte und inkl. MwSt.
Merkmale
- Erker
- Gästezimmer
- Carport
- Garage
Sie haben Interesse?
Laden Sie sich jetzt Ihr kostenloses Exposé zu diesem Haus herunter:
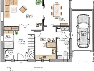
Grundrissfür Lifestyle 219 - inkl. überbauter Garage
Außenmaße
Länge: 10,05 m
Breite: 14,19 m
Grundrisse
Der Grundriss entspricht nicht Ihren Vorstellungen?
Passen Sie den Grundriss an Ihre persönlichen Bedürfnisse an und besprechen Sie Ihren individuellen Plan mit einem Bauberater des Anbieters.
Merkmale
Energiestandard und Förderung
Energiestandard
Effizienzhaus 40
Effizienzhaus 40 Plus
Effizienzhaus 55
Dach
Dachform
Satteldach
Dachneigung
38°
Preisdetails für Lifestyle 219 - inkl. überbauter Garage
Schlüsselfertig ab
534.094 €
Ausbauhaus ab412.931 €
ab 1.607,85 €
Dieser Preis ist ein Beispiel für den Anfang, ein Berater kann Ihnen ein detailliertes Angebot erstellen, das Ihren Bedürfnissen entspricht.
Möchten Sie bei Ihrem Projekt Geld sparen?
Durch einen Angebotsvergleich mit Bungalow.de können Sie bis zu 20 % Ihrer Baukosten sparen.
Über den Anbieter Suckfüll Energiesparhaus
Zum Anbieterprofil
Bewertungen
3,5
(57)

Bewertungen
3,5
57 BewertungenAkzeptabel
Suckfüll Energiesparhaus in Zahlen
Gründungsjahr
1958
Häuser im Angebot
47
Bewertungen von Suckfüll Energiesparhaus
Herr Krämer hat einen kompetenten Eindruck ge...
Herr Krämer hat einen kompetenten Eindruck gemacht. Das Gespräch war vertrauensvoll und konstruktiv. Das Angebot ist absolut interessant. Suckfüll ist trotz kleinerer Firma eine Bereicherung.
15 Juni 2025Ulrike O.
Suckfull hat ein Online -Video gesendet und a...
Suckfull hat ein Online -Video gesendet und auch Schwabenhaus.
20 Jan. 2024Heike W.
nichts bestimmtes
nichts bestimmtes
02 Aug. 2023Paul B.
Leistungsspektrum
Preisgarantie
Bauzeit Garantie
Individuelle Planung
Blower Door Test
Persönliche Beratung für Ihre individuellen Wünsche
Finden Sie jetzt Ihren Ansprechpartner
Suckfüll Energiesparhaus
Weitere Häuser
Ähnliche Häuser Für Lifestyle 219 - inkl. überbauter Garage