
Pulthaus 169 von Suckfüll Energiesparhaus
Ab 472.388 €
Bewertungen von Suckfüll Energiesparhaus
3,5
(57)
Wohnfläche
172 m²
Zimmer
8,5
Ausbaustufe
Schlüsselfertig
Bauweise
Fertighaus
Etagen
2
Energiestandard
Effizienzhaus 40
Dachform
Pultdach
Hausart
Einfamilienhaus
Beschreibung
Durch die moderne Architektur dieses Hausentwurfs bekommen die Bauherren eine optimale Ausnutzung der Sonnenseite. Große Fensterelemente durchfluten den Küchen- und Wohnbereich mit Licht.
Der große Balkon trägt erheblich zur Ausstrahlung des Hauses bei. Über die gesamte Hauslänge angelegt, werden durch ihn sowohl Eltern- und Kinderzimmer aufgewertet als auch Schatten für die Terrasse gespendet.
Preise verstehen sich inkl. Bodenplatte und 19 % MwSt. - Mehrpreis für Balkon = 33.395 € - Mehrpreis für Vordach = 6.725 €
Sie haben Interesse?
Laden Sie sich jetzt Ihr kostenloses Exposé zu diesem Haus herunter:
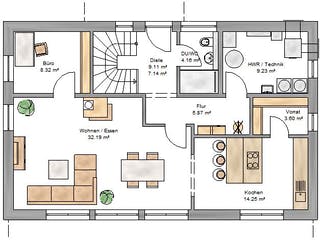
Grundrissfür Pulthaus 169
Außenmaße
Länge: 8,3 m
Breite: 13,15 m
Grundrisse
Der Grundriss entspricht nicht Ihren Vorstellungen?
Passen Sie den Grundriss an Ihre persönlichen Bedürfnisse an und besprechen Sie Ihren individuellen Plan mit einem Bauberater des Anbieters.
Merkmale
Energiestandard und Förderung
Energiestandard
Effizienzhaus 40
Effizienzhaus 40 Plus
Effizienzhaus 55
Dach
Dachform
Pultdach
Dachneigung
23°
Preisdetails für Pulthaus 169
Schlüsselfertig ab
472.388 €
Ausbauhaus ab353.925 €
ab 1.422,08 €
Dieser Preis ist ein Beispiel für den Anfang, ein Berater kann Ihnen ein detailliertes Angebot erstellen, das Ihren Bedürfnissen entspricht.
Möchten Sie bei Ihrem Projekt Geld sparen?
Durch einen Angebotsvergleich mit Bungalow.de können Sie bis zu 20 % Ihrer Baukosten sparen.
Über den Anbieter Suckfüll Energiesparhaus
Zum Anbieterprofil
Bewertungen
3,5
(57)

Bewertungen
3,5
57 BewertungenAkzeptabel
Suckfüll Energiesparhaus in Zahlen
Gründungsjahr
1958
Häuser im Angebot
47
Bewertungen von Suckfüll Energiesparhaus
Herr Krämer hat einen kompetenten Eindruck ge...
Herr Krämer hat einen kompetenten Eindruck gemacht. Das Gespräch war vertrauensvoll und konstruktiv. Das Angebot ist absolut interessant. Suckfüll ist trotz kleinerer Firma eine Bereicherung.
15 Juni 2025Ulrike O.
Suckfull hat ein Online -Video gesendet und a...
Suckfull hat ein Online -Video gesendet und auch Schwabenhaus.
20 Jan. 2024Heike W.
nichts bestimmtes
nichts bestimmtes
02 Aug. 2023Paul B.
Leistungsspektrum
Preisgarantie
Bauzeit Garantie
Individuelle Planung
Blower Door Test
Persönliche Beratung für Ihre individuellen Wünsche
Finden Sie jetzt Ihren Ansprechpartner
Suckfüll Energiesparhaus
Weitere Häuser
Ähnliche Häuser Für Pulthaus 169