








Kundenhaus Croce - generation5.5 Haus 200 von WeberHaus
Ab 361.500 €
Bewertungen von WeberHaus
4,0
(48)
Wohnfläche
189 m²
Zimmer
7
Ausbaustufe
Schlüsselfertig
Bauweise
Fertighaus
Etagen
1,5
Energiestandard
Effizienzhaus 55
Dachform
Satteldach
Hausart
Einfamilienhaus
Beschreibung
Dieses Fertighaus in ökologischer Holzbauweise basiert auf der Baureihe generation5.5 und verfügt über insgesamt 188 Quadratmeter Wohnfläche.
Das Erdgeschoss wird durch einen großen Flachdach-Anbau erweitert. Das anderthalbgeschossige Eigenheim verfügt über einen hohen Kniestock sowie ein Satteldach mit Photovoltaik-Anlage. Der Baukörper zeigt sich schlicht in Weiß mit Fensterrahmen in Anthrazit.
Über eine zwei-flügelige Glastür gelangt man auf die Terrasse. Eine Pergola mit seitlichem Sichtschutz verwandet den Bereich in einen gemütlichen Rückzugsort.
Angabe zum Preis:
Der Preis bezieht sich auf die Basisversion generation5.5, Haus 200, Ausbaustufe Bad komplett, inkl. Bodenplatte, Stand 10/2025
Sie haben Interesse?
Laden Sie sich jetzt Ihr kostenloses Exposé zu diesem Haus herunter:
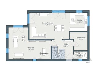
Grundrissfür Kundenhaus Croce - generation5.5 Haus 200
Außenmaße
Länge: 9,23 m
Breite: 11,41 m
Grundrisse
Der Grundriss entspricht nicht Ihren Vorstellungen?
Passen Sie den Grundriss an Ihre persönlichen Bedürfnisse an und besprechen Sie Ihren individuellen Plan mit einem Bauberater des Anbieters.
Merkmale
Energiestandard und Förderung
Energiestandard
Effizienzhaus 55
U-Wert
0,11
Dach
Dachform
Satteldach
Dachneigung
28°
Kniestockhöhe
190 cm
Preisdetails für Kundenhaus Croce - generation5.5 Haus 200
Schlüsselfertig ab
361.500 €
ab 1.088,27 €
Dieser Preis ist ein Beispiel für den Anfang, ein Berater kann Ihnen ein detailliertes Angebot erstellen, das Ihren Bedürfnissen entspricht.
Möchten Sie bei Ihrem Projekt Geld sparen?
Durch einen Angebotsvergleich mit Bungalow.de können Sie bis zu 20 % Ihrer Baukosten sparen.
Über den Anbieter WeberHaus
Zum Anbieterprofil
Bewertungen
4,0
(48)

Bewertungen
4,0
48 BewertungenGut
WeberHaus in Zahlen
Gründungsjahr
1960
Häuser im Angebot
46
Häuser pro Jahr
ca. 720
Häuser gesamt
über 41.000
Mitarbeiter
1.290
Bewertungen von WeberHaus
Unkompliziertes Erstgespräch über Teams. Sehr...
Unkompliziertes Erstgespräch über Teams. Sehr netter Berater, der auch schon langjährige Erfahrungen mit dem Unternehmen hat.
21 März 2026Julia V.
Überblick über Angebot
Ich habe einen Überblick bekommen.
30 Nov. 2025Cornelia J.
Gute Beratung und Unterstützung bei der Planu...
Gute Beratung und Unterstützung bei der Planung. Lange Wartezeit bis zur Hausaufstellung. Bedingungen für die Preisgarantie wurden so vorher nicht kommuniziert.
07 Juni 2025Ramona M.
Leistungsspektrum
Finanzierungsberatung
Preisgarantie
Bauzeit Garantie
Individuelle Planung
Blower Door Test
Persönliche Beratung für Ihre individuellen Wünsche
Finden Sie jetzt Ihren Ansprechpartner
WeberHaus
Ähnliche Häuser Für Kundenhaus Croce - generation5.5 Haus 200