









EDITION D 133/134 von WOLF-HAUS
Ab 401.842 €
Wohnfläche
133 m²
Zimmer
8
Ausbaustufe
Schlüsselfertig
Bauweise
Fertighaus
Etagen
2
Energiestandard
Effizienzhaus 55
Dachform
Satteldach
Hausart
Doppelhaus
Beschreibung
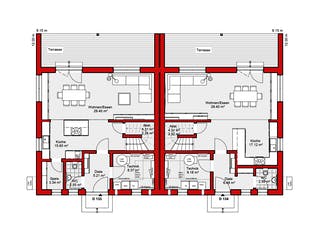
Die eingezogenen und überdachten Balkone und Terrassen sorgen für Privatsphäre trotz räumlicher Nähe. Auch hier unterscheiden sich die Grundrisse bei vielen Gemeinsamkeiten im Detail. So fi ndet sich im linken Grundriss eine Speisekammer mit Anschluss zur Küche. Dafür ist rechts die Diele etwas größer.
Haus 133
Wohnfläche: 133,17 m² - Preis: "Fast Fertig" - 401.842 € / ABH - 272.145 €
Haus 134
Wohnfläche: 133,69 m² - Preis: "Fast Fertig" - 399.732 € / ABH - 271.503 €
Die angegeben Preise beziehen sich auf die Ausbaustufe „Fast Fertig“ ab Oberkante Keller bzw. Bodenplatte, d.h. ohne Wandoberbeläge - jedoch in der Qualitätsstufe Q2 gespachtelt, sowie ohne Fußbodenbeläge außer Bad und WC - diese sind gefliest.
Sie haben Interesse?
Laden Sie sich jetzt Ihr kostenloses Exposé zu diesem Haus herunter:
Grundrissfür EDITION D 133/134
Außenmaße
Länge: 12 m
Breite: 9,15 m
Grundrisse
Der Grundriss entspricht nicht Ihren Vorstellungen?
Passen Sie den Grundriss an Ihre persönlichen Bedürfnisse an und besprechen Sie Ihren individuellen Plan mit einem Bauberater des Anbieters.
Merkmale
Energiestandard und Förderung
Energiestandard
Effizienzhaus 40
Effizienzhaus 40 Plus
Effizienzhaus 55
Dach
Dachform
Satteldach
Dachneigung
22°
Preisdetails für EDITION D 133/134
Schlüsselfertig ab
401.842 €
Ausbauhaus ab272.145 €
ab 1.209,71 €
Dieser Preis ist ein Beispiel für den Anfang, ein Berater kann Ihnen ein detailliertes Angebot erstellen, das Ihren Bedürfnissen entspricht.
Möchten Sie bei Ihrem Projekt Geld sparen?
Durch einen Angebotsvergleich mit Bungalow.de können Sie bis zu 20 % Ihrer Baukosten sparen.
Über den Anbieter WOLF-HAUS
Zum Anbieterprofil
WOLF-HAUS in Zahlen
Gründungsjahr
1902
Häuser im Angebot
24
Mitarbeiter
ca. 200
Leistungsspektrum
Preisgarantie
Bauzeit Garantie
Individuelle Planung
Blower Door Test
Persönliche Beratung für Ihre individuellen Wünsche
Finden Sie jetzt Ihren Ansprechpartner
WOLF-HAUS
Ähnliche Häuser Für EDITION D 133/134