








EDITION S 150 von WOLF-HAUS
Ab 465.336 €
Wohnfläche
150 m²
Zimmer
4
Ausbaustufe
Schlüsselfertig
Bauweise
Fertighaus
Etagen
2
Energiestandard
Effizienzhaus 55
Dachform
Flachdach
Hausart
Einfamilienhaus
Beschreibung
Sehr elegant sind hier die Akzente bei der Aussengestaltung gesetzt. Und auch die gerade Linienführung bei der Haustürüberdachung trägt zum souveränen Erscheinungsbild bei. Der Grundriss ist für das komfortable Zusammenleben einer 4-köpfi gen Familie ausgelegt.
Die angegeben Preise beziehen sich auf die Ausbaustufe „Fast Fertig“ ab Oberkante Keller bzw. Bodenplatte, d.h. ohne Wandoberbeläge - jedoch in der Qualitätsstufe Q2 gespachtelt, sowie ohne Fußbodenbeläge außer Bad und WC - diese sind gefliest. Inkl. Garage
Merkmale
- Garage
Sie haben Interesse?
Laden Sie sich jetzt Ihr kostenloses Exposé zu diesem Haus herunter:
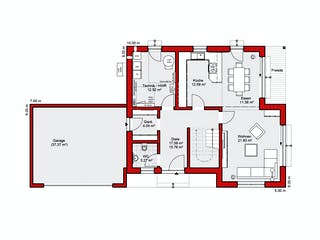
Grundrissfür EDITION S 150
Außenmaße
Länge: 11,5 m
Breite: 10,2 m
Grundrisse
Der Grundriss entspricht nicht Ihren Vorstellungen?
Passen Sie den Grundriss an Ihre persönlichen Bedürfnisse an und besprechen Sie Ihren individuellen Plan mit einem Bauberater des Anbieters.
Merkmale
Energiestandard und Förderung
Energiestandard
Effizienzhaus 40
Effizienzhaus 40 Plus
Effizienzhaus 55
Dach
Dachform
Flachdach
Dachneigung
2°
Preisdetails für EDITION S 150
Schlüsselfertig ab
465.336 €
Ausbauhaus ab319.102 €
ab 1.400,86 €
Dieser Preis ist ein Beispiel für den Anfang, ein Berater kann Ihnen ein detailliertes Angebot erstellen, das Ihren Bedürfnissen entspricht.
Möchten Sie bei Ihrem Projekt Geld sparen?
Durch einen Angebotsvergleich mit Bungalow.de können Sie bis zu 20 % Ihrer Baukosten sparen.
Über den Anbieter WOLF-HAUS
Zum Anbieterprofil
WOLF-HAUS in Zahlen
Gründungsjahr
1902
Häuser im Angebot
24
Mitarbeiter
ca. 200
Leistungsspektrum
Preisgarantie
Bauzeit Garantie
Individuelle Planung
Blower Door Test
Persönliche Beratung für Ihre individuellen Wünsche
Finden Sie jetzt Ihren Ansprechpartner
WOLF-HAUS
Ähnliche Häuser Für EDITION S 150