












Stadthaus Klassisch von Zimmerer-Profibau
Ab 510.000 €
Bewertungen von Zimmerer-Profibau
0
(0)
Wohnfläche
151 m²
Zimmer
9,5
Ausbaustufe
Schlüsselfertig
Bauweise
Fertighaus
Etagen
2
Energiestandard
Effizienzhaus 40 Plus
Dachform
Satteldach
Hausart
Einfamilienhaus
Beschreibung
Dieses Einfamilienhaus verbindet nachhaltiges Wohnen mit zeitloser Eleganz. Die Klinker- und Holzfassade sowie das begrünte Carportdach fügen sich harmonisch in die Natur ein. Die PV-Anlage mit Speicher sorgt für eine effiziente Energieversorgung, während edles Eichenparkett und sanfte Fußbodenwärme eine behagliche Wohnatmosphäre schaffen. Ein Zuhause, das Komfort und Ökologie perfekt vereint.
Merkmale
- Gästezimmer
Sie haben Interesse?
Laden Sie sich jetzt Ihr kostenloses Exposé zu diesem Haus herunter:
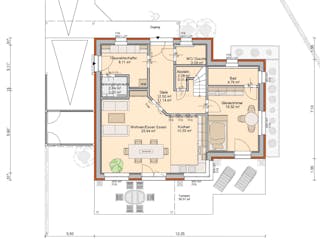
Grundrissfür Stadthaus Klassisch
Grundrisse
Der Grundriss entspricht nicht Ihren Vorstellungen?
Passen Sie den Grundriss an Ihre persönlichen Bedürfnisse an und besprechen Sie Ihren individuellen Plan mit einem Bauberater des Anbieters.
Merkmale
Energiestandard und Förderung
Energiestandard
Effizienzhaus 40 Plus
U-Wert
0,15
Dach
Dachform
Satteldach
Dachneigung
30°
Kniestockhöhe
12 cm
Preisdetails für Stadthaus Klassisch
Schlüsselfertig ab
510.000 €
ab 1.535,31 €
Dieser Preis ist ein Beispiel für den Anfang, ein Berater kann Ihnen ein detailliertes Angebot erstellen, das Ihren Bedürfnissen entspricht.
Möchten Sie bei Ihrem Projekt Geld sparen?
Durch einen Angebotsvergleich mit Bungalow.de können Sie bis zu 20 % Ihrer Baukosten sparen.
Über den Anbieter Zimmerer-Profibau
Zum Anbieterprofil
Bewertungen
0
(0)

Bewertungen
0
0 BewertungenKeine
Zimmerer-Profibau in Zahlen
Gründungsjahr
2003
Häuser im Angebot
10
Häuser pro Jahr
10
Mitarbeiter
24
Leistungsspektrum
Finanzierungsberatung
Preisgarantie
Bauzeit Garantie
Individuelle Planung
Blower Door Test
Persönliche Beratung für Ihre individuellen Wünsche
Finden Sie jetzt Ihren Ansprechpartner
Zimmerer-Profibau
Auszeichnungen, Zertifikate & Mitgliedschaften




Ähnliche Häuser Für Stadthaus Klassisch