5 Zimmer Bungalow: Grundriss, Preise & Wissenswertes
Bei der Gestaltung eines 5-Zimmer-Bungalows steht die flexible Raumaufteilung im Vordergrund. Ideal für eine vierköpfige Familie oder zwei Berufstätige mit separaten Home Offices, verfügt ein Grundriss für einen Bungalow mit 5 Zimmern über eine große Anpassungsfähigkeit an individuelle Bedürfnisse. Für ältere Bauleute sind beispielsweise gerade die Anpassungsmöglichkeiten für barrierefreies Wohnen interessant, während jüngere Baufamilien sich häufig auf Nachhaltigkeit, energieeffiziente Bauweisen und ökologische Materialien konzentrieren. Auch was die Ausstattung angeht, stehen Ihnen bei einem modernen 5-Zimmer-Bungalow verschiedenste Optionen offen, wie etwa eine integrierte Garage.
Wie groß das Grundstück sein muss, um ausreichend Platz für das Gebäude und Außenbereiche zu bieten, wie viel ein Bungalow mit 5 Zimmern kostet und weitere wichtige Informationen finden Sie auf dieser Seite.
Wie hoch sind die durchschnittlichen Kosten für einen 5-Zimmer-Bungalow?
Ein Bungalow mit 5 Zimmern und moderner Ausstattung kostet schlüsselfertig im Durchschnitt 3.000 Euro pro qm. Dieser Preis versteht sich ab Oberkante Bodenplatte beziehungsweise ab Decke Keller.
Hierbei zeigen sich tatsächlich auch Unterschiede nach Bauweise: So kostet ein 5-Zimmer-Bungalow als Fertighaus im Mittel 3.200 Euro pro qm, als Massivbau 2.600 Euro pro qm, wenn eine schlüsselfertige Übergabe gewünscht ist.
Als Ausbauhaus betragen diese Durchschnittswerte je 2.300 Euro pro Quadratmeter (Fertigbauweise) und 2.500 Euro pro Quadratmeter (Massivbauweise).
Beim Bausatzhaus mit Grundriss eines 5-Zimmer-Bungalows sollten Sie im Schnitt 1.800 Euro pro qm ansetzen.
Bungalow mit 5 Zimmern: Bauweisen
Einen 5-Zimmer-Bungalow können Sie in verschiedensten Bauweisen errichten lassen. Jede dieser Bauweisen hat ihre individuellen Vorteile, preislich unterscheiden sich diese allerdings kaum.
Besonders beliebt sind Bungalows mit 5 Zimmern in Fertigbauweise, da sich hierbei die Bauzeit beim Rohbau auf nur wenige Tage verkürzt. Zudem sorgt der Baustoff Holz – genau wie beim Blockhaus-Bungalow – für ein wohngesundes Raumklima und eine automatische Wärmedämmung.
Ein massiv Stein auf Stein gemauerter Bungalow mit 5 Zimmern punktet dagegen von Vornherein mit hervorragendem Schallschutz. Da hier alle Wände tragend sind, lässt sich der Grundriss beim Massivhaus-Bungalow mit 5 Zimmern des Weiteren sehr flexibel gestalten.
Bungalow-Grundriss mit 5 Zimmern: Gestaltungstipps für barrierefreies Wohnen
Gerade wer sich ein barrierearmes oder sogar barrierefreies Zuhause wünscht, etwa Familien mit kleinen Kindern oder auch ältere Bauleute, ist mit einem 5-Zimmer-Bungalow gut beraten. Denn die großzügige Bemessung erlaubt breite Türen und die verschiedenen Räume die Organisation des Haushalts auf einer Ebene, während der ebenerdige Bau die Grundvoraussetzung für Barrierefreiheit bildet. Bei der Bauplanung können entsprechend Badezimmer und Küche ebenfalls angepasst werden, etwa mit einer ebenerdigen Dusche und breiten Durchgangswegen. Auch der ebenerdige Zugang zu einer Garage ist hierbei zweckdienlich.
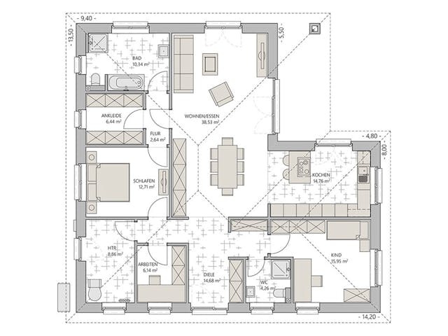
Grundriss Bungalow 5 Zimmer: Beispiele
Bungalow mit 5 Zimmern: Grundriss bei 3 Kindern
Die Gestaltung des Innenraums eines Bungalows mit 5 Zimmern, von denen drei als Kinderzimmer gedacht sind, hängt maßgeblich von der Hausform ab.
Bei einem Bungalow in U-Form mit 5 Zimmern mit Eingang im zentralen Bereich empfiehlt es sich, den Wohnbereich und die Küche in diesem mittleren Teil zu platzieren. Das Elternschlafzimmer inklusive Ankleide und Bad sollte idealerweise in einem der seitlichen Flügel untergebracht werden, während die drei Kinderzimmer auf der anderen Seite liegen. Hier ist auch die Planung eines zusätzlichen Badezimmers sinnvoll.
Für einen 5-Zimmer-Winkelbungalow in L-Form bietet es sich an, den kleineren Teilbereich für Wohnen, Küche und Hauswirtschaftsraum zu nutzen. Die Schlafzimmer, darunter die drei Kinderzimmer und das Elternschlafzimmer, sowie ein bis zwei Bäder finden im längeren Flügel Platz.
Ein Bungalow in I-Form stellt eine besondere Herausforderung dar, wenn es um die Unterbringung von drei Kinderzimmern geht. Hier ist eine Aufteilung sinnvoll, bei der die Schlafzimmer auf einer Hausseite und die gemeinsam genutzten Bereiche auf der anderen liegen. Im Bestfall werden die Kinderzimmer nebeneinander angeordnet, während das Elternschlafzimmer auf der anderen Seite der Diele liegt.














