


















Holzhaus in Holzkirchen von GRUBER.HAUS
Ab 2.500.000 €
Bewertungen von GRUBER.HAUS
0
(0)
Wohnfläche
181 m²
Zimmer
6
Ausbaustufe
Schlüsselfertig
Bauweise
Fertighaus
Etagen
3
Energiestandard
Effizienzhaus 40
Dachform
Satteldach
Hausart
Einfamilienhaus
Beschreibung
Das Holzhaus in Holzkirchen überzeugt in außergewöhnlicher Qualität und Architektur. Das enommierte Architekturbüro BBD vereinte auf einem schmalen Grundstück zwei vollkommen ausgestattete Wohnhäuser. Was hier in der Breite nicht möglich war, lässt sich in der Höhe umsetzen. Raumhöhen, die die Räume luftig gestalten, Fensterfronten, die viel Licht hereinlassen und Gestaltung, wo jede Rundung und Ecke durchdacht ist.
Mit der Kombination aus Sichtbeton im Erdgeschoss und Weißtannenverkleidung an den Wänden wird das Zuhause ankommen erst so richtig erfüllt. Öffnet man die Hauseingangstür und betrachtet das Erdgeschoss im Morgenlicht möchte man sich direkt mit einem guten Kaffee an den Küchentisch setzen.
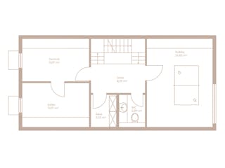
Im Obergeschoss und Dachgeschoss überzeugt das Einfamilienhaus mit vielen Räumen, Rückzugsorten, hochwertig ausgestatteten Badezimmern und jeder Menge Stauraum. Auch der Keller mit Hobbyraum und Technikraum lässt genügend Platz.
Ein Highlight ist die angrenzende Garage mit darüber liegender Einliegerwohnung. Wer lieber für sich bleiben möchte, kann hier auch eine Sauna oder ein Büro einbauen lassen. Alle ist möglich – keinem Traum ein Ende gesetzt.
Merkmale
- Garage
- Gästezimmer
- Keller
Sie haben Interesse?
Laden Sie sich jetzt Ihr kostenloses Exposé zu diesem Haus herunter:
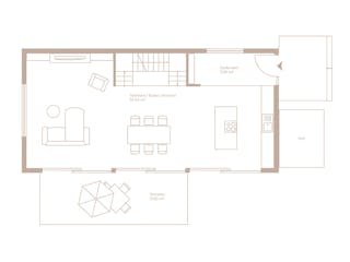
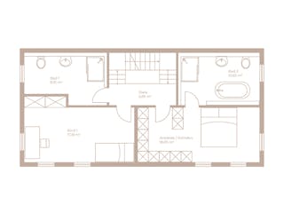
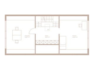
Grundrissfür Holzhaus in Holzkirchen
Grundrisse
Der Grundriss entspricht nicht Ihren Vorstellungen?
Passen Sie den Grundriss an Ihre persönlichen Bedürfnisse an und besprechen Sie Ihren individuellen Plan mit einem Bauberater des Anbieters.
Merkmale
Energiestandard und Förderung
Energiestandard
Effizienzhaus 40
Dach
Dachform
Satteldach
Preisdetails für Holzhaus in Holzkirchen
Schlüsselfertig ab
2.500.000 €
ab 7.526,04 €
Dieser Preis ist ein Beispiel für den Anfang, ein Berater kann Ihnen ein detailliertes Angebot erstellen, das Ihren Bedürfnissen entspricht.
Möchten Sie bei Ihrem Projekt Geld sparen?
Durch einen Angebotsvergleich mit Bungalow.de können Sie bis zu 20 % Ihrer Baukosten sparen.
Über den Anbieter GRUBER.HAUS
Zum Anbieterprofil
Bewertungen
0
(0)

Bewertungen
0
0 BewertungenKeine
GRUBER.HAUS in Zahlen
Gründungsjahr
2000
Häuser im Angebot
5
Häuser pro Jahr
14
Mitarbeiter
25
Leistungsspektrum
Preisgarantie
Bauzeit Garantie
Individuelle Planung
Blower Door Test
Persönliche Beratung für Ihre individuellen Wünsche
Finden Sie jetzt Ihren Ansprechpartner
GRUBER.HAUS
Ähnliche Häuser Für Holzhaus in Holzkirchen