








Haus Faber von Projektbau Mutter
Preis auf Anfrage
Bewertungen von Projektbau Mutter
0
(0)
Wohnfläche
216 m²
Zimmer
7
Ausbaustufe
Schlüsselfertig
Bauweise
Massivhaus
Etagen
2
Energiestandard
Effizienzhaus 55
Dachform
Walmdach
Hausart
Zweifamilienhaus
Beschreibung
Mediterrane Stadtvilla mit separater Gästewohnung.
Die pfiffige Stadtvilla Faber beeindruckt durch schlichte Eleganz in Kombination mit optimal genutzter Wohnfläche von 216 m². Eine großzügige Lösung des Hauses ist, dass dieses über eine komplette Gästewohnung verfügt.
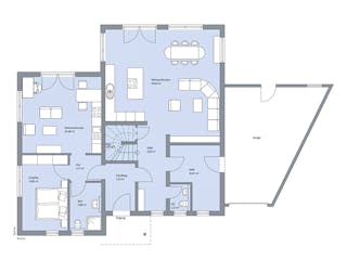
Über den Windfang des Erdgeschosses mit insgesamt 123 m² Wohnfläche können zwei getrennte Wohnbereiche betreten werden: die Räumlichkeiten der Bewohner sowie die Gästewohnung.
Zum Hauptwohnbereich gehören eine separate Diele, ein Gäste-WC, ein Hauswirtschaftsraum und das fast 47 m² große Wohn-/Esszimmer mit offener Küche und Terrassenzugang. Die Gästewohnung verfügt über einen kleinen Flur, ein Schlafzimmer, ein Duschbad und ein über 24 m² großes Wohnzimmer mit Küche. Auch hier gibt es einen Zugang zur Terrasse.
Das Obergeschoss ist ein Vollgeschoss mit 93 m² Wohnfläche. Ausreichend Platz also für drei fast gleich große Kinderzimmer mit großzügigem Bad. Zum Elternschlafzimmer gehören ein Ankleidebereich und ein eigenes Duschbad. Darüber hinaus befindet sich noch ein Technikraum auf dieser Etage.
Preis auf Anfrage
Sie haben Interesse?
Laden Sie sich jetzt Ihr kostenloses Exposé zu diesem Haus herunter:
Grundrissfür Haus Faber
Außenmaße
Länge: 13,12 m
Breite: 13,37 m
Grundrisse
Der Grundriss entspricht nicht Ihren Vorstellungen?
Passen Sie den Grundriss an Ihre persönlichen Bedürfnisse an und besprechen Sie Ihren individuellen Plan mit einem Bauberater des Anbieters.
Merkmale
Energiestandard und Förderung
Energiestandard
Effizienzhaus 40
Effizienzhaus 55
Dach
Dachform
Walmdach
Dachneigung
23°
Preisdetails für Haus Faber
Schlüsselfertig ab
Preis auf Anfrage
Dieser Preis ist ein Beispiel für den Anfang, ein Berater kann Ihnen ein detailliertes Angebot erstellen, das Ihren Bedürfnissen entspricht.
Möchten Sie bei Ihrem Projekt Geld sparen?
Durch einen Angebotsvergleich mit Bungalow.de können Sie bis zu 20 % Ihrer Baukosten sparen.
Über den Anbieter Projektbau Mutter
Zum Anbieterprofil
Bewertungen
0
(0)

Bewertungen
0
0 BewertungenKeine
Projektbau Mutter in Zahlen
Gründungsjahr
1978
Häuser im Angebot
5
Häuser pro Jahr
25
Häuser gesamt
1000
Mitarbeiter
8
Leistungsspektrum
Preisgarantie
Bauzeit Garantie
Individuelle Planung
Blower Door Test
Persönliche Beratung für Ihre individuellen Wünsche
Finden Sie jetzt Ihren Ansprechpartner
Projektbau Mutter
Auszeichnungen, Zertifikate & Mitgliedschaften



Ähnliche Häuser Für Haus Faber