Haus-Konfigurator: So planen Sie Ihr Eigenheim
Entdecken Sie die Möglichkeiten, wie Sie mit einem Haus-Konfigurator Ihr ideales Heim von der Vision zur Realität bringen können. Erfahren Sie mehr über die Vielfalt der Konfiguratoren und wie sie Ihnen helfen können, ein auf Ihre Bedürfnisse zugeschnittenes Haus zu entwerfen. Ob es um die Auswahl des perfekten Grundrisses, die Gestaltung der Außenfassade oder die technischen Aspekte Ihres zukünftigen Wohnsitzes geht, ein Hausbau-Konfigurator navigiert Sie durch den Prozess mit Leichtigkeit und Flexibilität.
Auswahl empfohlener Bungalows
Wissenswertes über Haus-Konfiguratoren
Planungsvielfalt mit dem Haus-Konfigurator: Von Massiv bis Modul
Unabhängig davon, ob Ihr Herz für ein traditionelles Massivhaus oder ein modernes Fertighaus schlägt, die heutigen Haus-Konfiguratoren umarmen jede Vorliebe und Bauweise. Die breite Palette an Auswahlmöglichkeiten reicht von gemütlichen Bungalows, die sich perfekt in die Landschaft schmiegen, bis hin zu imposanten Stadtvillen, die Stein auf Stein Ihr individuelles Wohnideal verkörpern. Selbst der Traum vom minimalistischen Tiny House oder einem großzügigen Familienheim lässt sich mit nur wenigen Klicks in eine greifbare Planung überführen.
Die intuitive Benutzeroberfläche eines jeden Konfigurators ermöglicht es, die Kosten verschiedener Hausmodelle direkt zu vergleichen, wodurch die gesamte Familie in die Planungsphase einbezogen wird – eine spannende Erfahrung, die lediglich einen Computer oder ein Tablet erfordert, ohne spezielle technische Fähigkeiten vorauszusetzen.
Ein essenzieller Schritt in der Nutzung des Konfigurators ist die Berücksichtigung Ihres Grundstücks. Sollten Sie bereits stolzer Grundstücksbesitzer sein, integrieren Sie die spezifischen Bebauungspläne und die Dimensionen Ihres Grundstücks in die Planung. Falls das passende Stück Land noch auf seine Entdeckung wartet, ermöglicht Ihnen der Konfigurator, einen vorläufigen Entwurf zu erstellen, der später an die realen Gegebenheiten angepasst werden kann.
Die Welt der Hausbau-Konfiguratoren online erkunden
Neben den spezifischen Konfiguratoren der Hausbauunternehmen wartet das Internet mit einer Vielzahl an kostenfreien Programmen, die Ihnen einen ersten Einblick in die Planung Ihres Eigenheims ermöglichen. Diese Unabhängigkeit in der Anfangsphase der Planung erlaubt es Ihnen, verschiedene Entwürfe zu erstellen und diese dann fachkundigen Architekten, Baufirmen oder Hausanbietern zu präsentieren. Mit diesem ersten Schritt legen Sie den Grundstein für die weitere Zusammenarbeit und die Realisierung Ihres Wohntraums.
Die Zeiten, in denen man sich mit einfachen Zeichnungen und viel Vorstellungskraft ein Bild vom zukünftigen Zuhause machen musste, sind vorbei. Moderne 3D-Konfiguratoren bieten die Möglichkeit, Ihr zukünftiges Heim in detaillierter Präzision und sogar in einem virtuellen 360°-Rundgang zu erleben. Änderungen an der Fassadenfarbe oder die Wirkung unterschiedlicher Lichtverhältnisse lassen sich mit einem Klick anpassen und aus verschiedenen Perspektiven betrachten.
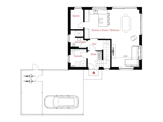
Grundrissgestaltung: Weitblick beweisen
Wenn Sie ein Haus konfigurieren, sollte die Planung des Grundrisses stets mit einem Blick in die Zukunft erfolgen. Dabei gilt es, nicht nur die aktuellen Bedürfnisse, sondern auch die mögliche Entwicklung Ihrer Familie über die nächsten zwei bis drei Jahrzehnte zu berücksichtigen. Vielleicht ist die Integration einer Einliegerwohnung oder die Planung eines barrierefreien Wohnkonzepts eine Überlegung wert. Bauunternehmen bieten hierzu erprobte Lösungen, die mit dem Massiv- oder Fertighaus-Konfigurator optimal visualisiert und angepasst werden können.
Der entscheidende Vorteil einer solchen Konfiguration liegt in der Möglichkeit, verschiedene Hausentwürfe unkompliziert zu erstellen und diese in Echtzeit zu vergleichen. Ein passgenauer Grundriss, der sowohl den persönlichen Bedürfnissen als auch dem finanziellen Rahmen gerecht wird, ist das Fundament jedes Hausbauprojekts.
Beachten Sie während der Detailplanung wichtige Aspekte wie die Position tragender Wände und die effiziente Verlegung von Leitungen. Eine durchdachte Raumaufteilung und offene Raumgestaltung tragen maßgeblich zur Lebensqualität in Ihrem zukünftigen Heim bei, welches im Konfigurator zum Leben erweckt wird.














































