Betonhaus: Kosten, Vorteile und Wissenswertes
Beton ist ein stabiles und sicheres Baumaterial. Außerdem ist ein modernes Betonhaus ästhetisch ansprechend. Aufgrund dieser Eigenschaften steigt die Zahl der Anbieter von Betonhäusern. Denn diese Häuser verbinden moderne Architektur mit minimalistischer Schlichtheit, was ein beliebter Trend ist. Beton ist vielseitig und muss sich nicht mehr hinter Wandverkleidungen verstecken. Viele Betonhaus-Hersteller verwenden daher Sichtbeton für die Innen- und Außengestaltung.
In diesem Artikel werden die Gründe für den anhaltenden Erfolg und die Beliebtheit des Baumaterials auch heute ausgeführt.
Betonhaus: Definition & Eigenschaften
Beton ist dauerhaft und witterungsbeständig. Außerdem ist er flexibel in der Verarbeitung. Häuser aus Beton sind nicht brennbar und erfüllen moderne Sicherheits- und Dämmanforderungen. Obwohl man mit Beton brutalistische Architektur in Grau assoziiert, sind Betonhäuser alles andere als kalt und ungemütlich. Sie speichern die Temperatur optimal, so dass die Häuser im Sommer kühl bleiben und im Winter die Heizwärme zurückhalten. Außerdem bietet Beton eine hervorragende Schalldämmung. Insgesamt hat ein Betonhaus viele Vorteile und übertrifft andere Baumaterialien, gerade was die Haltbarkeit und Feuerfestigkeit angeht.
Sie können ein Betonhaus in jedem gewünschten Format und jeder Größe erhalten. Der Begriff "Betonhaus" bezieht sich einfach auf das Material, das für Ihr Haus verwendet wird. Sie haben völlige Freiheit in Bezug auf Stil und Nutzungsart, Ihren Wünschen und Vorstellungen sind keine Grenzen gesetzt.
Betonhaus aktuell: 3D-Druck-Hausbau
Eine topaktuelle Sonderform des Betonhauses ist das Haus aus dem 3D-Drucker, das in futuristischem Design und mit den charakteristischen Drucklinien schon in Form von verschiedenen Prototypen gebaut, aber noch nicht serienmäßig produziert wird.
Betonhaus: Kosten & Preise
Die Kosten für den Bau eines Hauses variieren je nach Faktoren wie Architektur, Haustyp, Wohnfläche und besonderen Merkmalen. Wer sich für ein Betonhaus entscheidet, kann im Vergleich zur Planung mit einem Architekten Geld sparen. Betonhäuser kosten schlüsselfertig in der Regel zwischen 2.000 und 2.500 Euro pro Quadratmeter. Es empfiehlt sich, verschiedene Anbieter von Betonhäusern zu vergleichen, um die günstigste Option für Ihre Bedürfnisse zu finden.
Sie können beim Bau eines Betonhauses Kosten bezüglich der Handwerkslöhne sparen, wenn Sie Arbeiten auf der Baustelle selbst ausführen. Dazu gehören Arbeiten wie der Innenausbau, das Verlegen des Fußbodens und die Verkleidung der Wände. Die Gesamtkosten für ein 150 Quadratmeter großes Betonhaus mit Bodenplatte (ohne Keller) betragen im Schnitt etwa 300.000 Euro.
Laut des Statistischen Bundesamtes stiegen die Preise für Beton und Zement um einiges und zwar um knapp 30%. Ein Grund dafür ist die Energiekrise.
Unser Tipp: Möchten Sie ein Betonhaus bauen, entscheiden Sie sich zügig für einen Anbieter, um weitere Preiserhöhungen zu vermeiden!
Berücksichtigen Sie unbedingt die Baunebenkosten und kalkulieren Sie zusätzlich 15 bis 20 Prozent zur Sicherheit ein. Ein Beton-Fertighaus zum Selbstausbau ist eine kostengünstige Variante, weil Sie den Innenausbau selbst stemmen, und kostet bei gleicher Größe zwischen 195.000 und 270.000 Euro. Das heißt aber nicht, dass Ihr Betonhaus nicht auch eine ansprechende Architektur haben kann. Beton-Fertighäuser folgen aktuellen Bautrends und können flexibel nach Ihren eigenen Vorstellungen gestaltet werden.
Beton-Fertighaus bauen
Beton wird für den Bau moderner Häuser verwendet. Des Weiteren ist ein Beton-Fertighaus langlebig und zeitgemäß. Zudem sind Häuser aus Beton auch bei extremen Wetterbedingungen sicher. Zwar ist der Baustoff Beton nicht besonders nachhaltig, aber ein Betonhaus kann dennoch als Effizienzhaus errichtet werden und selbst mit großen Dreifach-Glasfronten ein Niedrigenergiehaus sein. Großes Plus: Beton ist wartungsarm und senkt dank guter Dämmeigenschaften die Heizkosten. Es gibt viele Anbieter und Haustypen, aus denen Sie wählen können. Sie können sich Ihr Traumhaus ohne Einschränkungen erfüllen.
Ein Beton-Fertighaus kann in wenigen Wochen errichtet werden, da die vorgefertigten Betonteile auf die Baustelle geliefert werden. Diese effiziente Methode spart sowohl Zeit als auch Geld, so dass es sich lohnt, verschiedene Anbieter von Betonhäusern zu prüfen, um Ihr ideales Haus aus diesem langlebigen Material zu bauen.
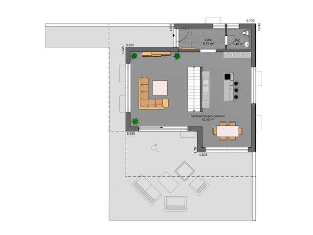
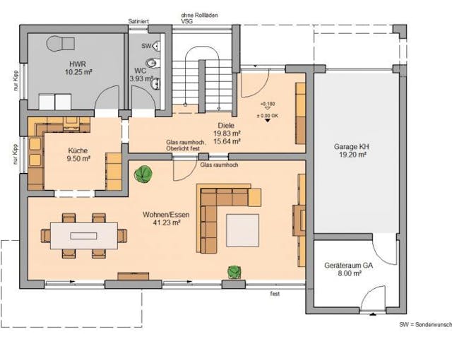
Betonhaus: Grundrisse
Empfohlene Betonhaus Anbieter
Häufig gestellte Fragen zum Thema Betonhaus




















